X

Ваш емайл:
Ваш пароль:
Запомнить:
Монино - музей самолетов
Калязин - затонувС?РёР№ РіРѕСЂРѕРґ
Самара - родина жигулевского пива

Главная / Админ / Блог / Наследие Екатеринбурга: конструктивизм

Наследие Екатеринбурга: конструктивизм

Россия - Свердловская область - Екатеринбург

Современный Екатеринбург – единственный город в мире, где насчитывается 140 зданий в авангардном стиле. Благодаря хорошей сохранности зданий, фонд всемирного наследия ЮНЕСКО считает столицу Урала архитектурным ансамблем-памятником конструктивизму.

Автор: Админ

С простора от снега светлого

встает новорожденный город Свердлова.

Полунебоскребы лесами поднял,

чтоб в электричестве мыть вечера,

а рядом - гриб, дыра, преисподняя,

как будто у города нету "сегодня",

а только - "завтра" и "вчера".

Владимир Маяковский

«Екатеринбург - Свердловск», 1928 г.

20-30-е годы в стране Советов – время больших перемен, больших надежд и масштабного строительства, когда советская архитектура задавала тренд в мировом градостроение. Небольшая группа архитекторов-авангардистов искренне верит в счастливое коммунистическое будущее, где человека новой формации будут окружать новые жилые дома, общежития, школы, больницы, клубы, универмаги, заводы - все, без чего не сможет жить человек будущего. При этом в новой среде все функционально, ничего лишнего! Так, в архитектуре на смену модерна пришел функционально сдержанный конструктивизм. Так, немногим более чем за десятилетие Екатеринбург-Свердловск приобрел новый облик, благодаря чему в наши дни город по праву считается заповедником отечественного архитектурного авангарда.

Только два города в мире могут сравниться с Екатеринбургом по смелости архитектурных проектов в авангардном стиле – Чандигарх и Бразилиа. В 1951-1960 годах Чандигарх был построен на новом месте «с нуля» по проектам архитектора Ле Корбюзье. Строительство курировал первый премьер-министр независимой Индии Джавахарлал Неру.

Место для новой столицы Бразилии в 1955 году определил президент страны Жуселин Кубичек. Город нового типа Бразилиа к 1960-му году вырос в самом сердце страны по проектам Лусио Коста и ученика Ле Корбюзье Оскара Нимейера.

Как и в случае с Екатеринбургом, оба города появились в непростые политические, экономические времена. И на минутку задумайтесь – конструктивистский Свердловск был построен на 30 с лишним лет раньше, чем авангардная архитектура стала популярная в остальном мире.

В 1923 году Екатеринбург стал культурно-административным центром Уральской области. В 1924 году город переименовали в Свердловск. Для преобразования города выделены не только финансовые, но и кадровые ресурсы. Строительство Большого Свердловска, а правильнее сказать, формирование свердловского конструктивизма, велось под влиянием трех архитектурных школ – московской, петербургской и томской.

Московскую школу представляли идеологи советского конструктивизма Голосов, Гинзбург, братья Веснины, Корнфельд, Фридман, Буров. Идеи конструктивизма широко внедрялись представителями петербургской школы (Домбровский, Антонов, Соколов, Голубев, Оранский, Робачевский) и томскими архитекторами (Смирнов, Рейшер, Балакшина, Захаров). К середине 20-х годов к прогрессивному для своего времени архитектурному течению примкнули свердловские архитекторы Бабыкин, Валенков, Тумбасов, Глушков. В период строительного бума первых пятилеток конструктивистам удалось реализовать свои самые смелые проекты. И как результат, в наши дни в Екатеринбурге насчитывается более 140 авангардных строений, занимающих иногда целые кварталы. Только в пространстве главного проспекта Дом связи, Дом печати, Клуб строителей, Городок чекистов, жилые дома на Ленина (52/54), дом физкультуры "Динамо". Всего их более 30!

К сожалению, некоторые проекты так и остались на чертежах и макетах. К концу 30-х годов новым официальным архитектурным стилем Советского Союза стал сталинский неоклассицизм, символизирующий торжество победившего социализма. Время триумфа конструктивизма закончилось.

В чем же отличие конструктивизма от других архитектурных стилей? Направление, возникшее перед революцией 1917 года в рамках поздней «конструктивной» стадии модерна, в начале 20-х годов уже в советском искусстве формировалось в тесном взаимодействии с левыми течениями в живописи (с супрематизмом, кубизмом и футуризмом), яркие представители которых Казимир Малевич, Василий Кандинский, Владимир Татлин, Александр Родченко. Со временем экспериментальные достижения в изобразительном искусстве стали использовать и архитекторы.

Преклоняясь перед возможностями новой техники, приверженцы конструктивизма изучали, а затем и отдавали предпочтение в своих проектах эстетическим особенностям металла, стекла, бетона и дерева. Конструктивистами провозглашались новые эстетические идеалы простоты и утилитарной целесообразности, которые вели бы к строительству нового общества, к революционному переустройству и упорядочению жизни человека в соответствии с новыми общественными целями и принципами среды общественного бытия.

Уже во второй половине 20-х в Екатеринбурге начинается строительство административных зданий, проекты которых создаются с учетом основных положений конструктивистского течения – функциональность, лаконизм форм и минимальное использование элементов декора. Эти строения специалисты относят «рациональному модерну» или проконструктивизму.

1925 г. Екатеринбургская товарная биржа, по проекту основателя уральской архитектурной школы Константина Трофимовича Бабыкина. В 1929 году по проекту архитектора С. В. Домбровского рядом со зданием был разбит сквером. В настоящее время место биржи занимает её копия.

1925 г. гостиница «Ярмарком», архитектор Константин Трофимович Бабыкин. Сейчас здесь размещается клиника Уральского НИИ травматологии и ортопедии им. Чаклина.

1925-1928 г.г. Здание управления пермской железной дороги построено по проекту К. Т. Бабыкина. Несмотря на время строительства, выдержан в стиле неоклассицизма с элементами функционального модерна (предшественника конструктивизма).

Автор: Админ

1926-1928 г.г. Промбанк («Деловой дом») по проекту 1925 г. архитектора Гурьева-Гурьевича под руководством инженера И.Н. Крысова. Хотя здание проектировалось и возводилось как банк, по окончании строительства его передали под другие учреждения. В многоэтажном здании на 10 уличных и 10 дворовых входов только одна центральная лестничная клетка оснащена лифтом. В остальных частях «Делового дома» сообщение между этажами осуществлялось по лестничным клеткам, расположенным в центре и в концах коридоров.

Автор: Админ

Автор: Админ

1926 -1928 г.г. гостиница «Центральная», архитектор В. Дубровин. Первая по-настоящему большая гостиница, рассчитанная на 250 номеров и оснащенная лифтом. Номера разместились со 2 по 5 этаж, а нижний этаж отдан под столовую, читальный зал, ванные комнаты, парикмахерскую, магазин и справочное бюро. Фасад почти полностью лишен декора: на гладкой поверхности видны лишь широкие пилястры и межоконные лопатки. Уже в этом проконструктивистском здании наблюдается стремление архитектор выбирать под строительство угловые участки на пересечении улиц. Такое расположение позволяет проектировать сложные объемно-пространственные композиции, когда здание с разных сторон раскрывается в новых неожиданных ракурсах. К примеру, у гостиницы «Центральная» в отличие от основных плоских фасадов, торцевые скругленные фасады асимметричны.

Автор: Админ

Автор: Админ

1926 – 1927 г. г. Бани по проекту архитектора В.Д. Соколова – одно из первых коммунальных зданий в Свердловске. Несмотря на классический портик, влияние нового стиля просматривается в лаконичном облике здания: строгое членение протяженного фасада рядом широких плоских пилястр. И, кстати, баня до сих пор действующая – почти 90 лет!

Автор: Админ

Автор: Админ

Автор: Админ

1928 г. Здание государственного банка было построено в 1913 году по проекту архитектора Константина Трофимовича Бабыкина (первоначально назывался Русско-Азиатский банк). После передачи в ведение Государственного банка РСФСР, в 1928-1929 годах оно было перестроено: надстроен этаж над центральной частью и добавлен со стороны южного фасада новый трехэтажный объем, благодаря чему строение приобрело черты конструктивизма.

Автор: Админ

В начале 20-х годов в Екатеринбург устремились люди не только из окрестных городов и деревень, но из других регионов. Поэтому, начиная с 1927 года, одновременно со строительством госучреждений, промышленных зданий и окружающих их соцгородков, в городе появляются отдельные жилые дома и целые жилые кварталы. Основная черта таких построек – одновременно с жилыми домами строят бытовые заведения, которые занимают либо нижние этажи, либо отдельные корпуса. К домам обязательно прилегала собственная, обычно огороженная, территория, где разбивали парк.

В 1927-1929 годах по проектам Сигизмунда Владиславовича Домбровского были построены четыре жилых комплекса, так называемые Дома Горсовета.

1927-1928-е годы 1-й Дом горсовета. Первая секционная пятиэтажка появилась в районе исторической застройки на пересечении улиц Толмачева, Пушкинской и проспекта Ленина. Даже сегодня, пройдя сотню метров от этого дома по Пушкинской улице, вы окажетесь среди одноэтажных усадебных домов 19 века.

Автор: Админ

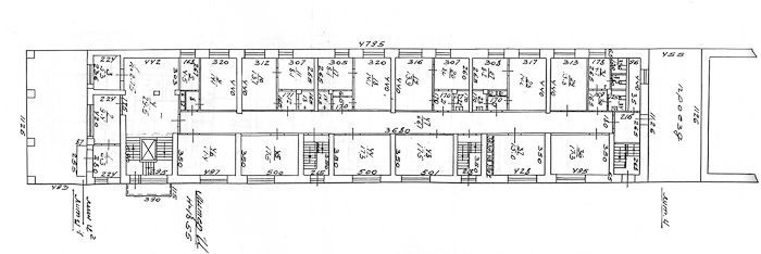
80% квартир в новом доме заняли рабочие свердловских заводов, а 20% — работники Горсовета и Облисполкома. Для семьи из 5 человек выделялась квартира из 2-х комнат (с кухней) жилой площадью 30 кв.м.

Поэтажный план 1 и 2 этажа.

Автор: Админ

Автор: Админ

Частная собственность была отменена, т.е. жильё сдавалось, поэтому за такую квартиру с полным коммунальным обслуживанием ежемесячно платили около 50 рублей. Для жильцов при доме построили ясли, детский сад (средняя плата 3-4 рубля за ребенка), прачечная и домовая баня.

1928 г. 5-й Дом горсовета («Дом коммуна») построен по проекту Владимира Дубровина. Дом проектировался как главное здание в жилом комплексе «Уральский специалист», состоящем из четырех пятиэтажных домов и детского сада, размещенных по периметру, с собственным двором и парком с фонтаном.

Автор: Админ

Автор: Админ

На месте снесенных усадеб, торговых рядов, складов, лавок бывшей Торговой площади был построен только один корпус и фонтан перед его дворовым фасадом. Спортивный зал построить не успели. На первом этаже построенного корпуса разместили детский сад, почтовое отделение и первый советский гастроном Свердловска, появившийся в начале 1930-х годов (Гастроном № 1 или «Большой гастроном»), который, к сожалению, в 1990-е был разделен на маленькие частные магазинчики.

На 2-м и 3-х этажах размещались коммунальные квартиры по коридорному типу, а на 4-м и 5-м – отдельные квартиры.

Автор: Админ

Однако, за этим домом-коммуной среди свердловчан закрепилось еще одно название – клоповник. Из книги Александра Нейштадта «Свердловск индустриальный»: «Дом № 5 Горсовета по улице Вайнера. Водопровод. Канализация, центральное отопление, солярий, столовая, красный уголок. Но поглядите, что делается в коридоре этого дома: грязь. В отдельных квартирах клопы и тараканы. Вчера побелили, сегодня не узнаешь, где белено. Выходы захламлены. Часть из них забита. А чердаки открыты для кого угодно, и преступный элемент свил себе там гнездо. Балконы не доделываются третий год. Всюду небрежность. Полы трескаются. А ведь на строительство дома государство потратило 2 миллиона рублей! Не умеем мы бережно относиться к собственному имуществу!» Следовательно, разруха не в клозетах, а в головах. (с)

Конец 1920-х г.г. Дом чекистов – одно из двух самых высоких зданий РСФСР за пределами Москвы, первый небоскреб на Урале по проекту группы архитекторов-конструктивистов во главе с Антоновым и Соколовым. Дом строился силами раскулаченных крестьян. Первоначально дом был 5-секционный - Г-образное 4-этажное здание с 5-этажными первым и третьим подъездами и 6-этажным вторым. Но весной 1929 года, когда в дом въехали первые жильцы, в Москву поступила жалоба от рабочих Верх-Исетского завода – дом называли «новым дворянским гнездом с фонтаном». Проект «псевдобуржуазного гнезда» в кратчайшие сроки был переделан: П-образное 4-этажное здание с закругленными углами по пять этажей и примыкающий к нему с юга 11-этажный корпус с высоты птичьего полета напоминал серп, а фасад 11-этажного гиганта был окрашен в темно-серый и белый цвет - цвета формы чекистов. Однако фонтан все равно оставили.

Автор: Админ

Пока строили Дом чекистов, началось возведение жилкомбината НКВД – Городка чекистов (о нём чуть позже), и к 1932 году название здания сменили на Второй Дом Советов. Во второй очереди на заселение квартиры распределяли уже не среди чекистов, а среди работников обкома партии, облисполкома, а также военачальников, писателей, ученых, артистов и старых большевиков.

Кстати, при первом заселении до 40% квартир были коммунальными. Как правило, на одну семью отводилась одна комната, но бывало, правда, и больше. К въезду хозяев квартиры уже были меблированы, включая слоников на полке, шторы и подушки. Имущество было казенным, на всем стоял инвентарный номер, и за пользование с ответственного квартиросъемщика взималась ежегодная арендная плата.

Домовые дворы охранялись круглосуточными постами милиции (сотрудники даже держали служебных собак), до войны дворы закрывали на ночь. А вот жильцы этого дома запирали свои квартиры лишь перед сном - квартирных краж не было.

С домом связана одна необычная история, о том, как дом-серп на какое-то время стал домом с крестом. Как это отразилось на судьбе архитектора Антонова можно прочитать в «Уральском рабочем»

1929-1936 г.г. 2-й жилой комбинат НКВД, который позже свердловчане назвали «Городком чекистов». Комплекс из 15 разных по назначению зданий был построен по проекту 1929 года группы архитекторов (В.Д. Соколов, А.Н. Стрельмащук, А.М. Тумбасов) под руководством Антонова. Строительство велось с 1931 по 1936 год.

Автор: Админ

Автор: Админ

Вертолётный снимок 1979 года. Подковообразное здание - гостиница «Исеть» связано переходом с клубом Дзержинского и универсальным магазином. В центре комплекса - поликлиника, детский сад и ясли.

Автор: Админ

Для воплощения в жизнь популярной в то время мечты о всеобщей коллективизации горожан и освобождения от мещанского быта, конструктивистский проект предусматривал дом гостиничного типа для молодежи и малосемейных, восемь жилых домов, здания клуба и магазина, фабрику-кухню, медицинский корпус с аптекой, здание детского сада и яслей и собственную радиоточку. Размещение зданий в квартале определялось их функциональным назначением. Парадные общественные постройки – 11-ти этажный подковообразный дом для молодежи и малосемейных (он же первый серп Свердловска и нынешняя гостиница «Исеть»), промтоварный магазин и клуб Дзержинского, выходят на центральную улицу - проспект Ленина.

Автор: Админ

Автор: Админ

С других трех сторон квартал застроен по периметру жилыми 5-ти этажными домами секционного типа. Причем, если смотреть на профиль домов, то он напоминают пилу (другое мнение – развивающиеся флаги) – каждый последующий дом построен с отступом от предыдущего, что не только гасит городской шум, но позволяет солнечному свету беспрепятственно проникать в окна. Во внутреннем озелененном дворе жилого квартал в 1932 году построена поликлиника, а в 1933 - трехэтажное здание детского сада и яслей.

Автор: Админ

Автор: Админ

Предполагалось, что новому советскому человеку не надо тратить время на мещанские занятия, как то приготовление пиши и стирку белья, поэтому кухонь и ванных в квартирах не было. Даже если это 3х-комнатная квартира площадью 97 кв.м. Каждый день домохозяйки спускались во двор за готовыми блюдами, которые готовились в построенных здесь же фабриках-кухнях. Белье стирали в дворовых прачечных, а мылись в общественных банях.

Вход на территорию Городка чекистов был строго по пропускам, а для вноса-выноса любого предмета (ящика, чемодана и т.д.), требовалось отдельное разрешение.

К сожалению, и это «к сожалению» придется повторять часто, когда говоришь о нынешнем состоянии многих конструктивистских зданий в городе, дома Городка чекистов хоть и имеют официальный статус памятников архитектуры федерального значения, давно нуждаются в ремонте, а также в охране и от владельцев магазинов на нижних этажах, которые на 200% обезобразили фасады домов рекламными щитами, и от жильцов домов, несогласованно и безнаказанно по своему вкусу заменяющих оригинальные рамы на стеклопакеты произвольной конфигурации и окраски.

Через дорогу от Городка чекистов расположен другой жилой квартал Дом гостяжпромурала, построенный в 1931-1936 годы по проекту свердловских архитекторов Георгия Валенкова и Евгения Короткова. В отличие от Городка чекистов, территория комплекса хоть и была огорожена, но не охранялась милицией, и зайти во двор мог каждый желающий. Правда, по воспоминаниям жильцов дома местные мальчишки неохотно впускали в свой двор «деревенских» - мальчишек из соседних деревянных домов. В отместку за это «деревенские» называли детей, живших в новых домах, «тяжпромовскими крысами».

Автор: Админ

В Гостяжпромовских домах так же были построены банно-прачечные корпуса, столовые, поликлиники, детские сады и ясли, магазины, клубы, а в квартирах вместо кухонь - лишь кухни-шкафы. Все здания жилого комплекса связывались между собой переходами: можно было зайти в жилой комплекс с переулка Решетникова и выйти с противоположной стороны квартала на проспект Ленина. Правда, по словам жильцов, во время войны, когда в дома подселяли эвакуированных, коридоры были перекрыты. После войны ничего уже не изменилось, свободные переходы остались в прошлом.

Кстати, в одном из Гостяжпромовских домов (проспект Ленина доме 52/1) жил легендарный советский разведчик Николай Кузнецов, о чем свидетельствует мемориальная доска на фасаде, установленная в честь 100-летия со дня его рождения.

Автор: Админ

Одна их характерных черт конструктивизма – стремление придать архитектурному объекту какую-то определенную форму. Например, как уже упомянутый, Дом чекистов построен в виде серпа, второй серп и развивающиеся знамена (или всё-таки пила?) - в Городке чекистов. Есть еще дом-трактор – здание Главпочтамта.

Автор: Админ

Но, на мой взгляд, особенно хорош корабль на стрелке городского пруда – дом физкультуры клуба «Динамо», построенный в 1929-1934 годах по проекту В.Д. Соколова.

Автор: Админ

Автор: Админ

Вначале в 1929 году был заложен стадион с трибунами на 6400 зрителей.

Автор: Админ

Затем в 1932 году была построена лодочная станция, включавшая четыре бассейна (2 для соревнований и 2 детских), вышки с трамплинами и зрительские трибуны на противоположном берегу пруда.

И наконец, был возведен южный корпус – 3-5 этажный, с остроугольным остекленным выступом эркера, напоминающим нос корабля, и надстройкой на крыше - капитанской рубкой. Следуя концепции конструктивизма о функциональности, кажущиеся на первый взгляд исключительно декоративные детали постройки, архитекторы запланировали не только для размещения в южном корпусе администрации дома физкультурника, но и создания обзорной площадки с солярием.

Автор: Админ

Автор: Админ

Я думаю, что в 20-30 годах город проектировали счастливые люди. Их удаче можно позавидовать. Только представьте – архитекторы, творцы создают не просто здания, а с нуля целый город-сад, где будут по-новому жить новые люди. Может быть, это утопия. Но для тех, кто переехал в дома-коммуны из лачуг с земляным полом, кто пошел работать на Уралмаш, это было реальностью. Конечно, не будем забывать, что не все творения конструктивистов были построены на пустырях. Да, были снесены и усадьбы, и церкви. Из песни слов не выкинешь…

В Екатеринбурге живут неравнодушные люди, которые своими силами борются за сохранение города. В 2010 году был создан проект Белая башня, участники которого взяли под опеку один из памятников конструктивизма - водонапорную башню рабочего поселка Уралмашзавода, статус которого был признан ЮНЕСКО. О Белой башне можно больше узнать из книги эксперта проекта Игоря Александровича Казуся «Советская архитектура 1920-х годов: организация проектирования» или профессора УралГАХА Леонида Николаевича Смирнова «Конструктивизм» из серии «Стили в архитектуре Свердловской области». В моей библиотеке теперь есть эта книга:

Автор: Админ

Та самая Белая башня:

Автор: Админ

Полагаю, что для первого знакомства с конструктивизмом в Екатеринбурге я рассказала достаточно. Но продолжение следует.

Тэги: конструктивизм

2014-04-23

Подписывайся в MAXе

Реклама

Использование материалов сайта без письменного разрешения редакции запрещено